Property Description

“ALI PASHË GUCIA” STREET

Apartment 1+1 for sale in a very good area, very close to “Skënderbej” Square and the New Bazaar. The area is very well organized and there is a regular social, commercial, educational and health network, with roads on all four sides, which take you very easily to both the center and the ring road. One of the most developed areas and with high demand for housing and business development.

The area offers supermarkets, schools, kindergartens, nurseries, bars/cafes, restaurants, various services, etc.

The apartment is located in a new building, with 3 underground floors and 9 above-ground floors, with very good works, with an elevator and very good administration.

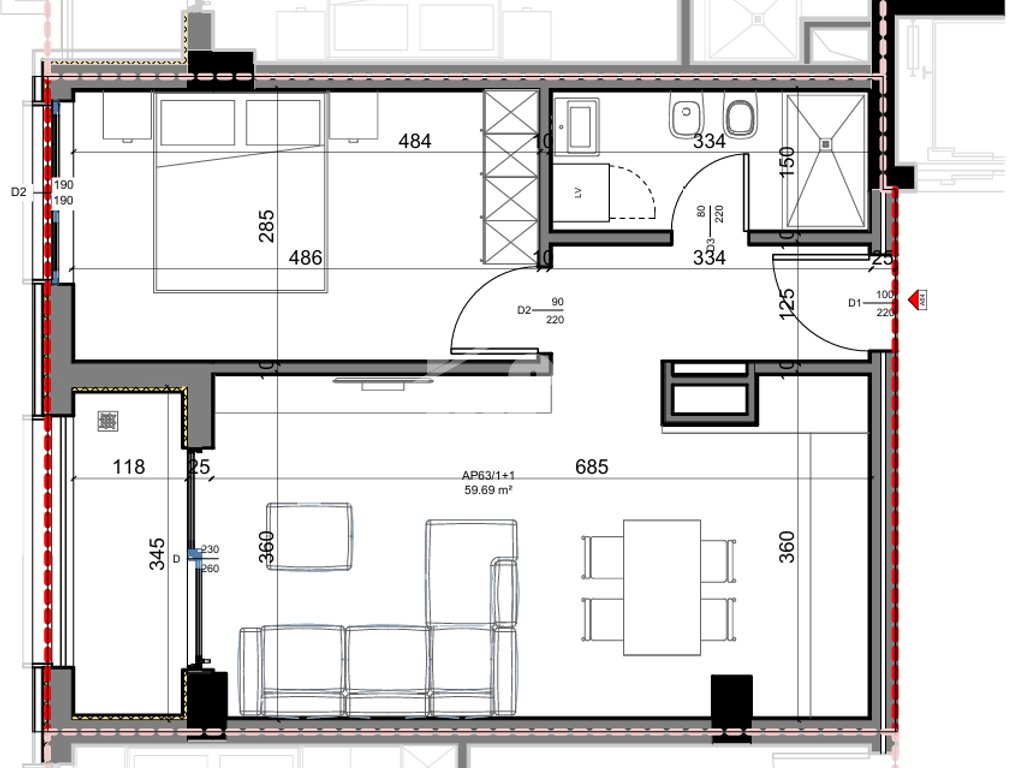
Apartment 1+1 for sale, with a net area of 59.69 m2 (gross 67.86 m2), 8th floor, with south-west orientation. It is organized by living room + kitchen + dining room, bedroom, bathroom and balcony.

It also offers 1 parking space on the -1 floor with a value of 32,000 euros.

Completion deadline April 2028.

Property Details

Price €: 176,500 €
City: Tirana
Type: 1+1
Floor: 8
Floors: 9
Elevator: Yes
Interior Area: 59 m2
Gross Area: 67 m2
Bedrooms: 1
Baths: 1
Furnished: Not Furnished
Construsction Year: 2028
Reference: INF1745

Location

Whatsapp