Pershkrimi i Prones

9 KM NGA QENDRA E TIRANES

Secret Garden Residence, ndodhet në një nga zonat më të preferuara dhe elitare të Tiranës në mes të gjelberimit, ajrit të paster dhe qetësisë që ofron zona. Zona është e zhvilluar me komplekse rezidenciale vilash shume afer me Rolling Hills Residence, TEG, Tirana International School dhe World Academy of Tirana dhe vetëm 15 minuta me makinë nga qendra e kryeqytetit.

Secret Garden Residence ofron siguri 24 ore, stilin e jetesës elegante, pranë kryeqytetit por larg zhurmes dhe kaosit urban, sherbime, infrastrukture moderne, privatësi, gjelberim, ajer të paster, mirëmbajtje elitare, jetese në komunitet, etj. Prona gjendet në një godine shumë cilësore dhe me administrim shumë të mirë. 

Apartamenti është shume cilesor dhe modern. Ne dhomen e ndenjes ka oxhak me pelet, ndricim tavanor me spote, termoizolim, i shtruar me parket, dritaret triple xham per izolim akustik dhe termik maksimal, sistem ngrohje-ftohje qendror etj.

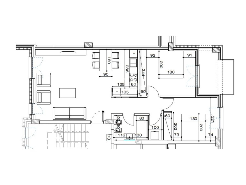
Apartament ne shitje 2+1 me sipërfaqe ndertimi 96.4 m2 (108.4 m2 bruto), kati i 2-të me orientimin shume te mire jug-lindje-perendim dhe me pamje të bukur të zonës. Organizohet nga ambienti i ndenjës + kuzhinë + ngrënie, 2 dhoma gjumi, 1 tualet, depo lavanderi dhe ballkoni.

Me certifikate pronesie

Detajet e Prones

Cmimi €: 240,000 €
Qyteti: Tirana
Lloji: 2+1
Kati: 2
Sip. e brendshme: 96 m2
Sip. Totale: 108 m2
Dhomat e gjumit: 2
Tualetet: 1
Referenca: INF1571
Vendndodhje
Whatsapp